Trên mảnh đất hướng Tây Nam, đôi vợ chồng làm trong lĩnh vực nghệ thuật xây dựng tổ ấm sau thời gian tích cóp. Là những người hướng nội, sống khép kín. Họ mong muốn không gian ở yên tĩnh, kín đáo, tối giản nhưng cởi mở với thiên nhiên. Để đáp ứng nhu cầu trên, kiến trúc sư đề xuất thiết kế tổng thể kiến trúc nội thất căn hộ với 4 khối nhà (màu trắng) xen kẽ 3 khoảng sân (màu xanh). Được bao bởi hệ thống tường cao 9 m trong phạm vi xây dựng 8×16 m
Tổng thể thiết kế kiến trúc, nội ngoại thất của căn hộ
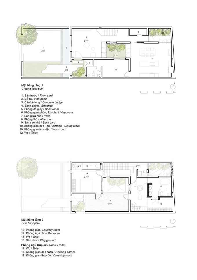
Thiết kế kiến trúc căn hộ
Bức tường bao trọn ngôi nhà với 3 khoảng sân. Tạo ra không gian vừa đóng lại vừa mở cho đôi vợ chồng hướng nội.



Hệ thống tường bao tối giản, đảm bảo nhu cầu riêng tư của gia chủ và tránh nắng trực tiếp từ hướng Tây.

Bên trong, ba khoảng sân chia sáng, chia gió cho toàn bộ khối nhà. Cây tre ở những khoảng sân này đóng góp màu xanh và những đường nét mạnh mẽ, đơn giản vào tổng thể kiến trúc
Nhờ những khoảng sân và ô mở trên 4 bức tường bao. Không gian dù “đóng” vẫn ngập nắng và gió, đem tới cảm giác tự do.

Giữa các phòng có sự kết nối liên tục, không ngắt quãng.
Thiết kế nội thất bên trong căn hộ

Khu bếp và ăn bố trí kín đáo tại tầng trệt. Cuối khu đất và được bao bọc bởi 2 khoảng sân

Phòng ngủ lớn cấu trúc dạng căn hộ Duplex. Bên dưới là không gian đọc sách, thay đồ; bên trên là giường ngủ.

Các phòng vừa riêng tư vừa cởi mở, phù hợp với yêu cầu gia chủ đưa ra với các kiến trúc sư.

Điều thú vị của công trình là bờ tường biên bên ngoài có cây vẩy ốc leo tự nhiên lâu năm. Để làm “mềm” phần hành lang bê tông dẫn vào nhà. Các kiến trúc sư đã chăm sóc và bảo vệ phần tường này suốt hơn 10 tháng thi công.

Bên cạnh đó, ngôi nhà càng được gắn kết nhờ sự xuất hiện của Vừng. Chú chó được vợ chồng gia chủ nhận nuôi sau khi các kiến trúc sư hoàn thành bản thiết kế.

Những ô cửa thấp vốn được đưa vào để đem đến các góc nhìn khác nhau. Giờ đây trở thành lối đi cho Vừng, để Vừng kết nối với thiên nhiên và đợi gia chủ đi làm về mỗi tối.

Nguồn Internet
>> Xem thêm:
Thiết kế và thi công nhà di động 30m2 tại Biên Hòa, Đồng Nai
Để được tư vấn chi tiết hơn về chi phí thiết kế, xây dựng, lắp đặt nội thất nhà ở, căn hộ, văn phòng. Vui lòng liên hệ trực tiếp tới Hotline hoặc để lại thông tin tại trang web này để chúng tôi kịp thời hỗ trợ nhé!
















